【売買物件】赤羽台四丁目住宅(マンション)|埼京線「北赤羽」駅|都内23区の都心不動産・中古マンション|ニアビーリアルエステート株式会社
目黒区を中心に都心23区の中古マンションならニアビーリアルエステートにお任せください
【
中古
マンション
】□駅徒歩4分の好立地!総戸数276戸の大規模マンション!
□12階建11階部分!南西向き、日当たり&眺望良好!
□小・中学校やスーパーなどがあり生活しやすい環境!
- 最寄駅
埼京線「北赤羽」駅 徒歩 4分
- 所在地
- 東京都北区赤羽台4丁目17-18
- 面積
専有面積/49.14㎡
- 築年月
- 昭和46年3月
- 価格
- 1,978万円
- 間取り
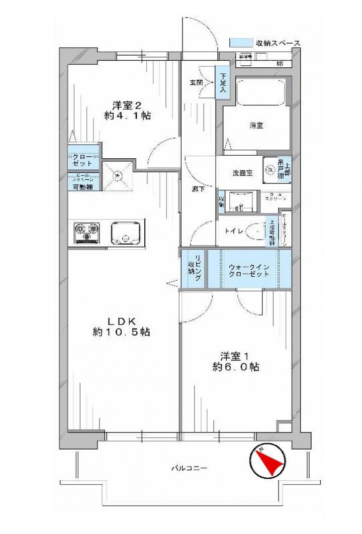
- 2 LDK
物件概要
- 物件名
- 赤羽台四丁目住宅
- 交通機関
埼京線「北赤羽」駅 徒歩 4分
- 所在地
- 東京都北区赤羽台4丁目17-18
- 間取り
- 2 LDK
- 間取り詳細
- 2LDK+W
- 土地権利
- 所有権
- 専有面積
- 49.14㎡
- 建物構造
- SRC
- 階 / 階数
- 12階建 11階部分
- 築年月
- 昭和46年3月
- 都市計画
- 市街化区域
- 用途地域
- 第一種中高層住居専用地域
- 地目
- 宅地
- 現況
- 空
- 販売戸数
- 276
- 管理費
- 9,000円
- 修繕積立金
- 12,000円
- 引渡し
- 相談
- 備考
- 物件詳細
所在地 東京都北区赤羽台4丁目17-18
交通情報
◆埼京線「北赤羽」駅徒歩4分
総戸数 276 管理形態 全部委託
築年月 昭和46年3月 管理人 通勤
間取り 2LDK+W 管理会社 日本総合住生活株式会社
構造・規模 SRC構造 12階建 11階部分 施工会社 株式会社間組
バルコニー 8.29m² 現況 空部屋
土地権利 所有権 引渡し 即時
管理費 9,000円 用途地域 第一種中高層住居専用
修繕積立金 12,000円
内装完了予定日
2016/3/4
弊社提携 りそな銀行の最優遇金利にて、0.6%(変動)住宅ローンがご利用頂けます。
室内は大変綺麗で、空室の為いつでもご見学可能です。
ぜひお気軽にご見学ください!
その他、ご要望等ございましたらお気軽にご相談ください。
※各種情報と差異がある場合は現況優先となります - 取引態様
- 媒介
- 物件番号
- 0108
- 情報登録日
- 2016年03月03日
- 情報更新日
- 2016年04月03日
お気軽にお問い合わせください


















◆新規リノベーション【安心&充実のサポート体制】アフターサービス保証付
◆追焚機能付
◆給湯管10年保証
◆ウォークインクローゼットやリビング収納、吊戸棚など多彩な収納スペースあり
◆エントランス・共用部分は大規模修繕工事済
弊社提携 りそな銀行の最優遇金利にて、0.6%(変動)住宅ローンがご利用頂けます。
室内は大変綺麗で、空室の為いつでもご見学可能です。
ぜひお気軽にご見学ください!
その他、ご要望等ございましたらお気軽にご相談ください。
※各種情報と差異がある場合は現況優先となります