【売買物件】朝日プラザ上板橋(マンション)|東武東上線「上板橋」駅|都内23区の都心不動産・中古マンション|ニアビーリアルエステート株式会社
目黒区を中心に都心23区の中古マンションならニアビーリアルエステートにお任せください
【
中古
マンション
】【新耐震基準マンション】緑豊かで閑静な住環境
□公園(敷地内)や幼稚園・小学校も近く子育てに優しい住まい
□上板橋駅北口には、商店・店舗・イベント多数の大商店街“マイスターかみいた”が広がっています!
- 最寄駅
東武東上線「上板橋」駅 徒歩 15分
- 所在地
- 東京都板橋区若木3-9-7
- 面積
専有面積/60.00㎡
- 築年月
- 昭和61年7月
- 価格
- 1,798万円
- 間取り
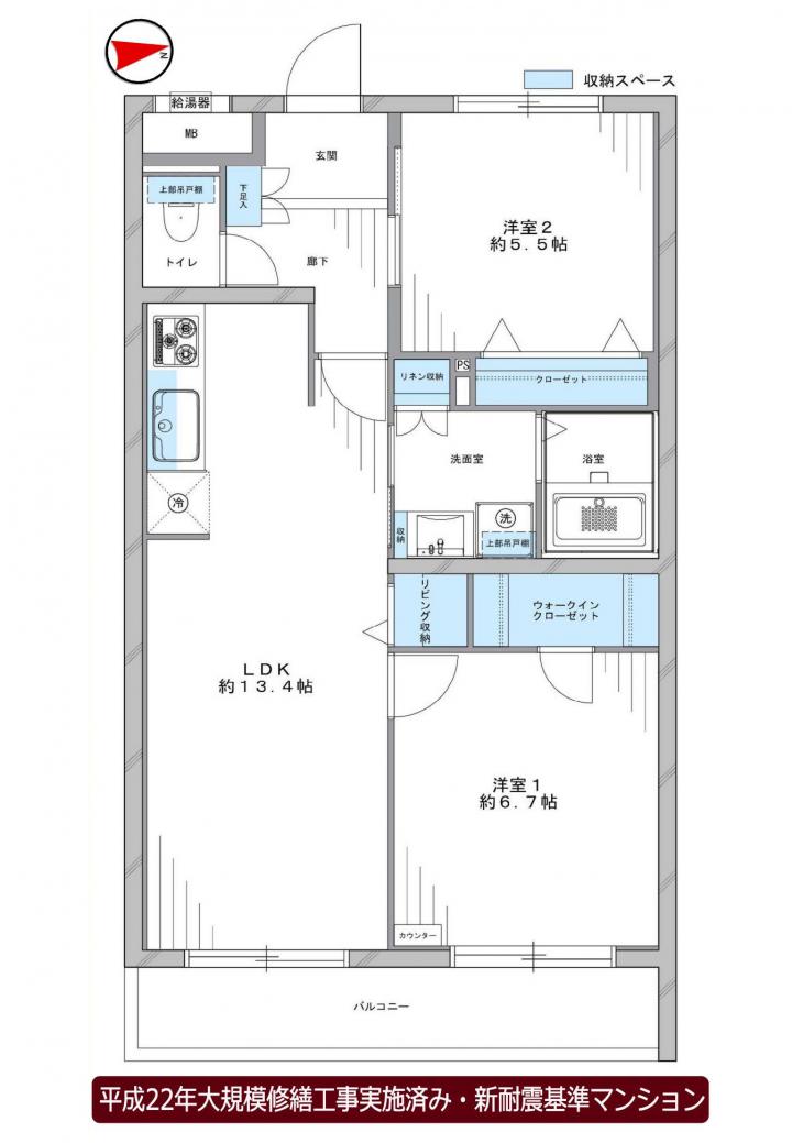
- 2 LDK
物件概要
- 物件名
- 朝日プラザ上板橋
- 交通機関
-
東武東上線「上板橋」駅 徒歩 15分
都営三田線「志村三丁目」駅 徒歩 17分
- 所在地
- 東京都板橋区若木3-9-7
- 間取り
- 2 LDK
- 間取り詳細
- 2LDK+W
- 土地権利
- 所有権
- 専有面積
- 60.00㎡
- 建物構造
- RC
- 階 / 階数
- 地下1階付5階建 4階部分
- 築年月
- 昭和61年7月
- 都市計画
- 市街化区域
- 用途地域
- 第一種中高層住居専用地域
- 地目
- 宅地
- 現況
- 空
- 販売戸数
- 45
- 管理費
- 9,000円
- 修繕積立金
- 14,100円
- 引渡し
- 即時
- 備考
- 物件詳細
所在地 東京都板橋区若木3-9-7
交通情報
◆東武東上線「上板橋」駅徒歩15分
◆都営三田線「志村三丁目」駅徒歩17分
総戸数 45 管理形態 全部委託
築年月 昭和61年7月 管理人 通勤
間取り 2LDK+W 管理会社 三菱地所丸紅住宅サービス株式会社
構造・規模 RC構造 地下1階付5階建 4階部分 施工会社 株式会社熊谷組
バルコニー 6.72m² 現況 空部屋
土地権利 所有権 引渡し 即時
管理費 9,000円 用途地域 第一種中高層住居専用
修繕積立金 14,100円
弊社提携 りそな銀行の最優遇金利にて、0.6%(変動)住宅ローンがご利用頂けます。
室内は大変綺麗で、空室の為いつでもご見学可能です。
ぜひお気軽にご見学ください!
その他、ご要望等ございましたらお気軽にご相談ください。
※各種情報と差異がある場合は現況優先となります
- 取引態様
- 媒介
- 物件番号
- 0105
- 情報登録日
- 2016年03月03日
- 情報更新日
- 2016年08月15日
お気軽にお問い合わせください

















ご成約済み!
◆新規リノベーション
◆安心&充実のサポート体制[アフターサービス保証付]
◆マンション・戸建が立ち並ぶ閑静住宅街に立地
◆外壁はアイボリー調のタイル貼りで明るくやわらかな印象
◆リビング空間は家具の配置がしやすい長方形
◆各室の一部壁面に上質なアクセントクロスを貼り、さりげなく個性を演出
◆収納豊富(ウォークインクローゼット・リビング収納・吊戸棚)
◆[Panasonic×LIXIL]最新の水廻り設備に一新
◆フラット構造でお手入れしやすいガラストップコンロ
◆食器洗い乾燥機標準装備
◆浴室暖房換気乾燥機・追い焚き機能付き
◆給水管・給湯管10年保証
◆超節水タンク一体型シャワートイレ
◆シーリングライト・ダウンライトにはLEDを採用
◆インターネット設備:KDDI
◆フラット35利用可
※平成22年大規模修繕工事実施済み
※エレベーターなし
弊社提携 りそな銀行の最優遇金利にて、0.6%(変動)住宅ローンがご利用頂けます。
室内は大変綺麗で、空室の為いつでもご見学可能です。
ぜひお気軽にご見学ください!
その他、ご要望等ございましたらお気軽にご相談ください。
※各種情報と差異がある場合は現況優先となります