【
          
            中古
          
            マンション
          
          】人気の【SEATOWER】30階部分!南東向き!オーシャンビュー!
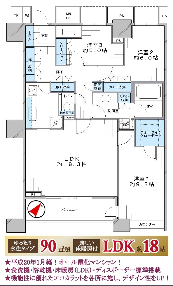
ゆったり永住タイプ90平米!広々LDK約18帖!床暖房付!
コンシェルジュサービス!24時間有人管理!
各種共用施設あり!制震構造採用!
| 最寄駅 | 所在地 | 面積 | 築年月 | 価格 | 間取り | 
|---|---|---|---|---|---|
| 千代田線「赤坂」駅 徒歩 4分 | 東京都中央区勝どき6-3-1 | 専有面積/90.27㎡ | 平成20年1月 | 11,480 万円 | 3 LDK | 
◆新規リノベーション【安心&充実のサポート体制】アフターサービス保証付
◆平成20年1月築!オール電化マンション
◆浴室乾燥機・食洗乾燥機付
◆給排水管・ガス管は安心の10年保証
◆ディスポーザー
◆床暖房(LDK)
◆各洋室に収納あり(ウォークインクローゼット・クローゼット)
◆多彩な収納あり(廊下収納・リネン収納・吊戸棚など)
◆機能性に優れたエコカラットを各所に施し、デザイン性をUP
◆トランクルームあり
◆ペット飼育可(規約に準ず)
※インターネット使用料:月額1,080円
※管理費1,820円(全体)/ 16,690円(シータワー)
※修繕積立金4,600円(全体)/ 11,840円(シータワー)
◆各種共用施設(一部有料あり)
【シータワー】
シアターコーナー(3F)/ カルチャーホール(3F)/ カフェラウンジ(3F)
スカイゲストルーム(50F)/ スカイラウンジ(49F)/ カルチャーホール(3F)
カフェラウンジ(3F)/ レンタサイクル(2F)etc
【シーサイドアネックス】
25mプール / ジャグジー / サウナ / フィットネスジム / ゴルフレンジ etc
弊社提携 りそな銀行の最優遇金利にて、0.6%(変動)住宅ローンがご利用頂けます。
現在、室内はフルリノベーション中です。
完了次第、画像を追加掲載致します。
その他、ご要望等ございましたらお気軽にご相談ください。
※各種情報と差異がある場合は現況優先となります
物件写真・間取り
物件概要
| 物件名 | THE TOKYO TOWERS SEA TOWER | 
|---|
| 交通機関 | 千代田線「赤坂」駅 徒歩 4分 銀座線・南北線「溜池山王」駅 徒歩 5分 大江戸線「勝どき」駅 徒歩 5分 | 
|---|
| 所在地 | 東京都中央区勝どき6-3-1 | 
|---|
| 間取り | 3 LDK | 
|---|
| 間取り詳細 | 3LDK+W | 
|---|
| 土地権利 | 所有権 | 
|---|
| 専有面積 | 90.27㎡ | 
|---|
| 建物構造 | RC | 
|---|
| 階 / 階数 | 地下2階付58階建 30階部分 | 
|---|
| 築年月 | 平成20年1月 | 
|---|
| 都市計画 | 市街化区域 | 
|---|
| 用途地域 | 準工業地域 | 
|---|
| 駐車場 | 空有 | 
|---|
| 地目 | 宅地 | 
|---|
| 現況 | 空 | 
|---|
| 販売戸数 | 1,981 | 
|---|
| 管理費 | 18,510円 | 
|---|
| 修繕積立金 | 16,440円 | 
|---|
| 引渡し | 相談 | 
|---|
| 備考 | 物件詳細 所在地 東京都中央区勝どき6-3-1 交通情報 ◆大江戸線「勝どき」駅徒歩5分 総戸数 1,981 管理形態 全部委託 築年月 平成20年1月 管理人 常駐 間取り 3LDK+W 管理会社 住商建物株式会社 構造・規模 RC構造 地下2階付58階建 30階部分 施工会社 前田建設工業株式会社・大成建設株式会社JV バルコニー 7.83m² 現況 空部屋 土地権利 所有権 引渡し 即時 管理費 18,510円 用途地域 準工業 修繕積立金 16,440円 備考 ◆新規リノベーション【安心&充実のサポート体制】アフターサービス保証付 ◆平成20年1月築!オール電化マンション ◆浴室乾燥機・食洗乾燥機付 ◆給排水管・ガス管は安心の10年保証 ◆ディスポーザー ◆床暖房(LDK) ◆各洋室に収納あり(ウォークインクローゼット・クローゼット) ◆多彩な収納あり(廊下収納・リネン収納・吊戸棚など) ◆機能性に優れたエコカラットを各所に施し、デザイン性をUP ◆トランクルームあり ◆ペット飼育可(規約に準ず) ※インターネット使用料:月額1,080円 ※管理費1,820円(全体)/ 16,690円(シータワー) ※修繕積立金4,600円(全体)/ 11,840円(シータワー) ◆各種共用施設(一部有料あり) 【シータワー】 シアターコーナー(3F)/ カルチャーホール(3F)/ カフェラウンジ(3F) スカイゲストルーム(50F)/ スカイラウンジ(49F)/ カルチャーホール(3F) カフェラウンジ(3F)/ レンタサイクル(2F)etc 【シーサイドアネックス】 25mプール / ジャグジー / サウナ / フィットネスジム / ゴルフレンジ etc 弊社提携 りそな銀行の最優遇金利にて、0.6%(変動)住宅ローンがご利用頂けます。 現在、室内はフルリノベーション中です。 完了次第、画像を追加掲載致します。 その他、ご要望等ございましたらお気軽にご相談ください。 ※各種情報と差異がある場合は現況優先となります | 
|---|
| 取引態様 | 媒介 | 
|---|
| 物件番号 | 0210 | 
|---|
| 情報登録日 | 2023年09月04日 | 
|---|
| 情報更新日 | 2023年10月03日 | 
|---|


























