【
中古
マンション
】平成24年築!北西角部屋!陽当たり・眺望良好!
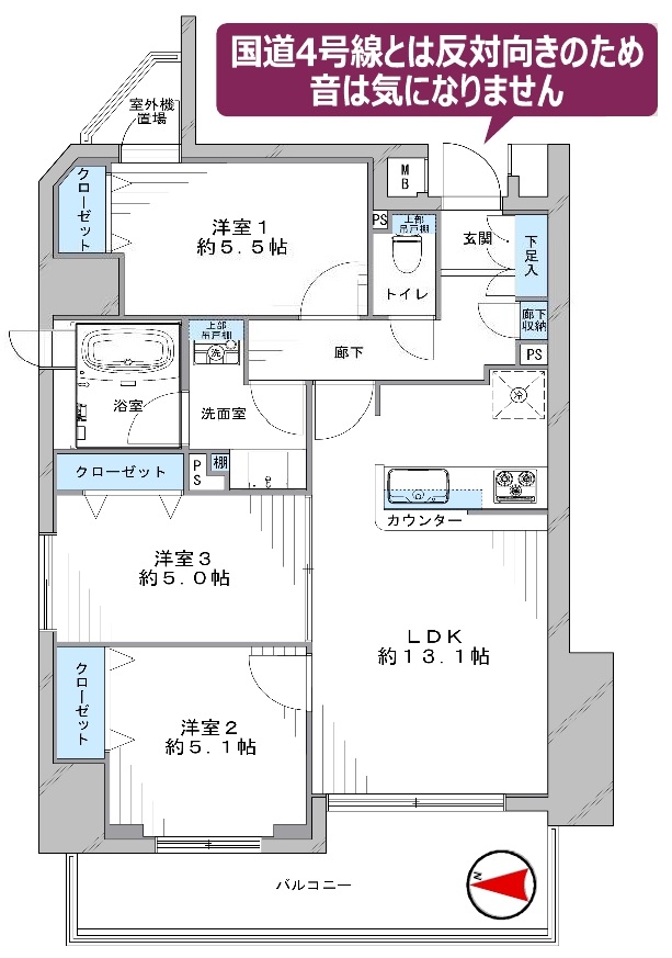
国道4号線とは反対向きのため音は気になりません!
2駅利用可!セキュリティ面も安心な環境です!
| 最寄駅 | 所在地 | 面積 | 築年月 | 価格 | 間取り |
|---|---|---|---|---|---|
東武伊勢崎線「梅島」駅 徒歩 16分 | 東京都足立区島根2-2-13 | 専有面積/68.12㎡ | 平成24年3月 | 5,280 万円 | 3 LDK |
◆新規リノベーション【安心&充実のサポート体制】アフターサービス保証付
◆浴室乾燥機&追焚機能付
◆食洗乾燥機付
◆給排水管・ガス管は安心の10年保証
◆対面式キッチン
◆天井照明は省エネ・環境に配慮したLED仕様でランニングコストを軽減
◆上質で洗練されたアクセントクロスをLDKの壁一面に施し、さりげなく個性のある、デザイン性の高いお洒落な空間を実現
◆各洋室にクローゼットあり
◆収納豊富(廊下収納、吊戸棚、下足入など)
◆オートロック
◆宅配ボックス
◆玄関扉にはダブルロックや防犯サムターンを採用
◆住宅ローン控除適用
◆ペット飼育可(規約に準ず)
※用途地域第一種中高層住居専用・準工業
※インターネット利用料:1,296円
※CATV受信料:月額756円
◆Life Information
・「梅島」「西新井」2駅利用可!
日比谷線・半蔵門線にも乗り入れしているので、通勤通学にも便利です!
・小学校や買物施設や近く、暮らしやすい立地です!
・最寄の「島根町」バス停より「北千住駅」「竹の塚駅」利用可
(約10分に1本の割合で運行しています)
弊社提携 りそな銀行の最優遇金利にて、0.6%(変動)住宅ローンがご利用頂けます。
室内は大変綺麗で、空室の為いつでもご見学可能です。
ぜひお気軽にご見学ください!
その他、ご要望等ございましたらお気軽にご相談ください。
※各種情報と差異がある場合は現況優先となります
物件写真・間取り
物件概要
| 物件名 | 西新井アークタワー |
|---|
| 交通機関 | 東武伊勢崎線「梅島」駅 徒歩 16分 東武伊勢崎線・大師線「西新井」駅 徒歩 19分 |
|---|
| 所在地 | 東京都足立区島根2-2-13 |
|---|
| 間取り | 3 LDK |
|---|
| 間取り詳細 | 3LDK |
|---|
| 土地権利 | 所有権 |
|---|
| 専有面積 | 68.12㎡ |
|---|
| 建物構造 | RC |
|---|
| 階 / 階数 | RC構造 15階建 5階部分 |
|---|
| 築年月 | 平成24年3月 |
|---|
| 都市計画 | 市街化区域 |
|---|
| 用途地域 | 第二種中高層住居専用地域 |
|---|
| 地目 | 宅地 |
|---|
| 現況 | 空 |
|---|
| 販売戸数 | 43 |
|---|
| 管理費 | 7,600円 |
|---|
| 修繕積立金 | 7,090円 |
|---|
| 引渡し | 即時 |
|---|
| 備考 | 物件詳細 所在地 東京都足立区島根2-2-13 交通情報 ◆東武伊勢崎線「梅島」駅徒歩16分 ◆東武伊勢崎線・大師線「西新井」駅徒歩19分 総戸数 43 管理形態 全部委託 築年月 平成24年3月 管理人 通勤 間取り 3LDK 管理会社 三菱地所丸紅住宅サービス株式会社 構造・規模 RC構造 15階建 5階部分 施工会社 今井産業株式会社 バルコニー 11.24m² 現況 空部屋 土地権利 所有権 引渡し 即時 管理費 7,600円 用途地域 第一種中高層住居専用 修繕積立金 7,090円 弊社提携 りそな銀行の最優遇金利にて、0.6%(変動)住宅ローンがご利用頂けます。 室内は大変綺麗で、空室の為いつでもご見学可能です。 ぜひお気軽にご見学ください! その他、ご要望等ございましたらお気軽にご相談ください。 ※各種情報と差異がある場合は現況優先となります |
|---|
| 取引態様 | 媒介 |
|---|
| 物件番号 | 0225 |
|---|
| 情報登録日 | 2023年09月20日 |
|---|
| 情報更新日 | 2023年10月19日 |
|---|



























